![Contoh Gambar Denah Rumah Minimalis [ www.BlogApaAja.com ] Contoh Gambar Denah Rumah Minimalis [ www.BlogApaAja.com ]](https://blogger.googleusercontent.com/img/b/R29vZ2xl/AVvXsEhK1qO6N0XKIbamekrl7nwg86MWv_O0UH5zgVOapcmvBVZuZoWnkddid3VG9LiomOMLaLONvtZEns2IFtnYk2fY6-pY1EbzIpb2V_4_dxBkt-cfYBXsciVzQTYHxp0puHv35YYUxpZ0EKqQ/s200/Denah-rumah-3.jpg)
Contoh Gambar Denah Rumah Minimalis Modern
Saat ini desain minimalis memang sedang booming. Banyak orang ingin membangun dengan desain rumah minimalis yang sesuai dengan kebutuhan anda seperti pada gambar-gambar rumah minimalis dibawah ini, Membangun rumah minimalis membutuhkan keahlian dalam membuat desain. Desain Rumah yang Profesional inilah yang akan menunjang terciptanya rumah minimalis yang anda idam-idamkan. Seperti kumpulan Desain minimalis ini.
Denah rumah minimalis juga harus sesuai dengan Konsep rumah minimalis yang bertujuan untuk meningkatkan nilai suatu ruang keseluruhan untuk eksterior dan interior dengan mengurangi segala sesuatu yang berlebih di dalam ruang tersebut. Konsep minimalis diterapkan dalam semua aspek termasuk arsitektur bangunan rumah, interior ruang, dan eksterior taman.
Jika anda ingin membuat rumah minimalis, mungkin beberapa contoh sketsa gambar rumah minimalisdibawah ini bisa dijadikan referensi untuk anda membangun rumah berdesain minimalis. Tapi jika anda ingin gunakan langsung untuk membangun rumah anda silakan saya jika anda berkenan.
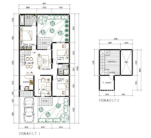
Berikut ini beberapa denah rumah minimalis
sebagai contoh untuk anda yang ingin membuat rumah Minimalis. Bila anda ingin melihat gambar denah dalam ukuran besar, silakan klik gambar tersebut, maka gambarnya akan otomatis membesar.
![Contoh Gambar Denah Rumah Minimalis [ www.BlogApaAja.com ] Contoh Gambar Denah Rumah Minimalis [ www.BlogApaAja.com ]](https://blogger.googleusercontent.com/img/b/R29vZ2xl/AVvXsEhK1qO6N0XKIbamekrl7nwg86MWv_O0UH5zgVOapcmvBVZuZoWnkddid3VG9LiomOMLaLONvtZEns2IFtnYk2fY6-pY1EbzIpb2V_4_dxBkt-cfYBXsciVzQTYHxp0puHv35YYUxpZ0EKqQ/s300/Denah-rumah-3.jpg)
![Contoh Gambar Denah Rumah Minimalis [ www.BlogApaAja.com ] Contoh Gambar Denah Rumah Minimalis [ www.BlogApaAja.com ]](https://blogger.googleusercontent.com/img/b/R29vZ2xl/AVvXsEjMF91kjN9joCTc2y_AtYfxtYOxjLEicQ31woIkY93x6yY4LXvfMRF9BdxzP6cU2bSGynZ8xJF2Ufot4E5e8qqNry6f6I_vHFACj09VkadOCHrU2MKTBlGmp-s00cNCBcRcHXCMnlEw4tM/s300/denah+rumah+sari.jpg)
![Contoh Gambar Denah Rumah Minimalis [ www.BlogApaAja.com ] Contoh Gambar Denah Rumah Minimalis [ www.BlogApaAja.com ]](https://blogger.googleusercontent.com/img/b/R29vZ2xl/AVvXsEhxkb91GqQWA6F1eZsUi8r2f6LPBAk5OODagd0apg1xEy_XcouCUbCTbf5j3lA-iad2FBNLdzaenWTNV2RWYTlA_baV3spXTC2XOwJ8clFY6XrBNGyeWS01794GB_K5YU4vI3_pnlyhkEs/s300/denah_r_kurnia_wiji.jpg)
![Contoh Gambar Denah Rumah Minimalis [ www.BlogApaAja.com ] Contoh Gambar Denah Rumah Minimalis [ www.BlogApaAja.com ]](https://blogger.googleusercontent.com/img/b/R29vZ2xl/AVvXsEgSgW4_p1KTwrbq4Zh_nYDLo6wr4dt3E4BR_EynOL-J3WzCTpjJDCgusKKRzUgBjshKMaIgkCCEQa65LZQfFO0y3XPqvIcvam7-MNfymYAT5Y2PeCxVPb5KvB1cmmDJUFoScrATOoD4iNVL/s320/Denah-Rumah-Kemayoran_3.jpg)
![Contoh Gambar Denah Rumah Minimalis [ www.BlogApaAja.com ] Contoh Gambar Denah Rumah Minimalis [ www.BlogApaAja.com ]](https://blogger.googleusercontent.com/img/b/R29vZ2xl/AVvXsEjFFu_s8udhYWDFUpPs1_IRSeuYUoqaBCOWR8rK6-1TKYHfldYTXJrv9Nh30maFw0RCgJ9DM3kWAUJCybWzjkBhmPyuILKfiPn66Q1T2dy3a1yISNoyCgKJ-JBOYJH5A_JaQHzefWj3Ubw/s300/denah1.gif)
![Contoh Gambar Denah Rumah Minimalis [ www.BlogApaAja.com ] Contoh Gambar Denah Rumah Minimalis [ www.BlogApaAja.com ]](https://blogger.googleusercontent.com/img/b/R29vZ2xl/AVvXsEiRO_K6Hxe-3funjDSnqTWG7H4ryh6mzsw_jcUQiKKETnO_LeLMlcSj2eaqDCR6JogxcIWwzwYK4LJxCuJGh1f3ezxvW85HLGYuCJ0Bn9ehXcW-rPfdK8b8Y_Bpu77cXPdc6NASYgyPEBtI/s300/denah_theparadise6_papirus.jpg)
![Contoh Gambar Denah Rumah Minimalis [ www.BlogApaAja.com ] Contoh Gambar Denah Rumah Minimalis [ www.BlogApaAja.com ]](https://blogger.googleusercontent.com/img/b/R29vZ2xl/AVvXsEgscEw0vvHrz_furlQWMPmaleQ3yQ75BPctPtGZkvTUAy8Ve8AzPRUZG46n7obgNNm7F5MCubR6e-hpaedkCxq9mwEVmVy3AL34kUtWaizSnm_gQacZxHZi2jlUgaMf5LoJ-JUPq673pjQ/s300/denah.jpg)
![Contoh Gambar Denah Rumah Minimalis [ www.BlogApaAja.com ] Contoh Gambar Denah Rumah Minimalis [ www.BlogApaAja.com ]](https://blogger.googleusercontent.com/img/b/R29vZ2xl/AVvXsEiD7xqnSNUjiNcgFOc0mg9cE7WUbtY7PZL-8RF30yg2uAbpv4pcyKZvZtofPVdC_crJytCaOqauu7HANeFQdHj449w01SMiaeYnn3nY8-6JGQSq6gNPawRsa9f2Kd5QCQd9iZsK2Hjm7qw/s320/Denah-Renovasi.jpg)
![Contoh Gambar Denah Rumah Minimalis [ www.BlogApaAja.com ] Contoh Gambar Denah Rumah Minimalis [ www.BlogApaAja.com ]](https://blogger.googleusercontent.com/img/b/R29vZ2xl/AVvXsEgE_USCsUMY7HLm7b9qDPr4NTey_CBjVoGZO1mZhvu2RI-2gwa4VlSDVMB-kUGSTCWJL8m4WklZIjZyHxJ4JCoK5_APJVzcDQh9CC45LIyZO1TIdUdhMygfvc24GHQ_ksbFvYinCBAAejo/s320/rumahsideentrance2-1024x800.jpg)
![Contoh Gambar Denah Rumah Minimalis [ www.BlogApaAja.com ] Contoh Gambar Denah Rumah Minimalis [ www.BlogApaAja.com ]](https://blogger.googleusercontent.com/img/b/R29vZ2xl/AVvXsEih5Hci2frMAOEiuVsM-WKxNqxe6HY3cxSVwfjDHziPAbVEDylbx8e6MfQk6CGdnexxePYx_nWZLNL9WWAKRmUsLjAq6JsIPEBBM9bDuCxcTbDpa-fOOhnzzlYif555G6WLU6wCdNz-RsA/s320/Denah-Renovasi.jpg)
![Contoh Gambar Denah Rumah Minimalis [ www.BlogApaAja.com ] Contoh Gambar Denah Rumah Minimalis [ www.BlogApaAja.com ]](https://blogger.googleusercontent.com/img/b/R29vZ2xl/AVvXsEga_K-sOoYiNQd7euw-mMIIuf3rXN10_LfqXbWgNe9lDUgKgaWvFEjjz6RqMOWmVJg6N3Tu0JzH0zYPdB66hFIrZMLl5_DU5dwhU1kkUFWHYPGRMTy-a7wiFkFrj9AfSTgSkOFRJzOOBj4/s320/404483-500x414.jpg)
![Contoh Gambar Denah Rumah Minimalis [ www.BlogApaAja.com ] Contoh Gambar Denah Rumah Minimalis [ www.BlogApaAja.com ]](https://blogger.googleusercontent.com/img/b/R29vZ2xl/AVvXsEhx4XcbTtBT1P7QKkeWckRDhuXE3sA-z3Q7R-isIM340AgTHwz-lpEeFlQYn-ityYRJtXRGS05CW4MVbMJSc5EfLi01ITrx8J8xRDxBYUkxzCvYeg6IjOTLEUwzbv3dOSAjJZpojcF37js/s320/denah42b1.jpg)
![Contoh Gambar Denah Rumah Minimalis [ www.BlogApaAja.com ] Contoh Gambar Denah Rumah Minimalis [ www.BlogApaAja.com ]](https://blogger.googleusercontent.com/img/b/R29vZ2xl/AVvXsEhCVGWJdCR1eaQgl4k14GXpQ4uuZybwFgQz-I8DjmdaSG1_4owXDZ0q9ttmBaw6TbRe-X7AD369P45xna8WHVqIubLr2PB1sZO0gsnOcdcmFQTsBg5pP3VPfUGnJUfUs-7vzp6-DJ_7z3c/s320/Denah-LT-1.jpg)
![Contoh Gambar Denah Rumah Minimalis [ www.BlogApaAja.com ] Contoh Gambar Denah Rumah Minimalis [ www.BlogApaAja.com ]](https://blogger.googleusercontent.com/img/b/R29vZ2xl/AVvXsEjdH3uGULFbVWN9gEliOUL30pNrxjjqug-aLLlCOke35dzHJhc2wW0rYf0UD6YlsIqRwJAGigCpgqQSKWNfWmVDze6N-hUdlcTosVnMc8lGGtNcYPViTtcKFR5R_gcLyuPAFpqoBHSZ9lM/s320/denah-rehab.jpg)
![Contoh Gambar Denah Rumah Minimalis [ www.BlogApaAja.com ] Contoh Gambar Denah Rumah Minimalis [ www.BlogApaAja.com ]](https://blogger.googleusercontent.com/img/b/R29vZ2xl/AVvXsEgTTTzkXdKd19beBtTOgHbv6nUioDF5MtGY77PvNjeJKWq7sRTphi37zQyPk0evt8_GDQMB-Md2dL-S0WMevRMbBjNCWFI6TI3ecuaod5Fue_rp4DXJKYb0z0wQtL6TNWqVHX7wdePHfM7N/s300/denah-rumah-minimalis-modern.jpg)
Semoga Sajian denah minimalis ini bermanfaat untuk anda terutama yang lagi berniat bikin rumah minimalis. Lihat juga desain pagar minimalis.